37, Ladder, Sharon, East Gwillimbury, Residential Freehold
MLS® Number N12565274
For Lease $ 3,980
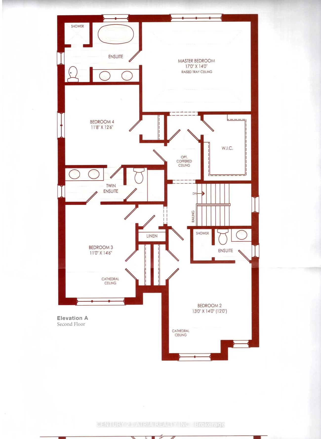
- 4 beds |
- 4 baths |
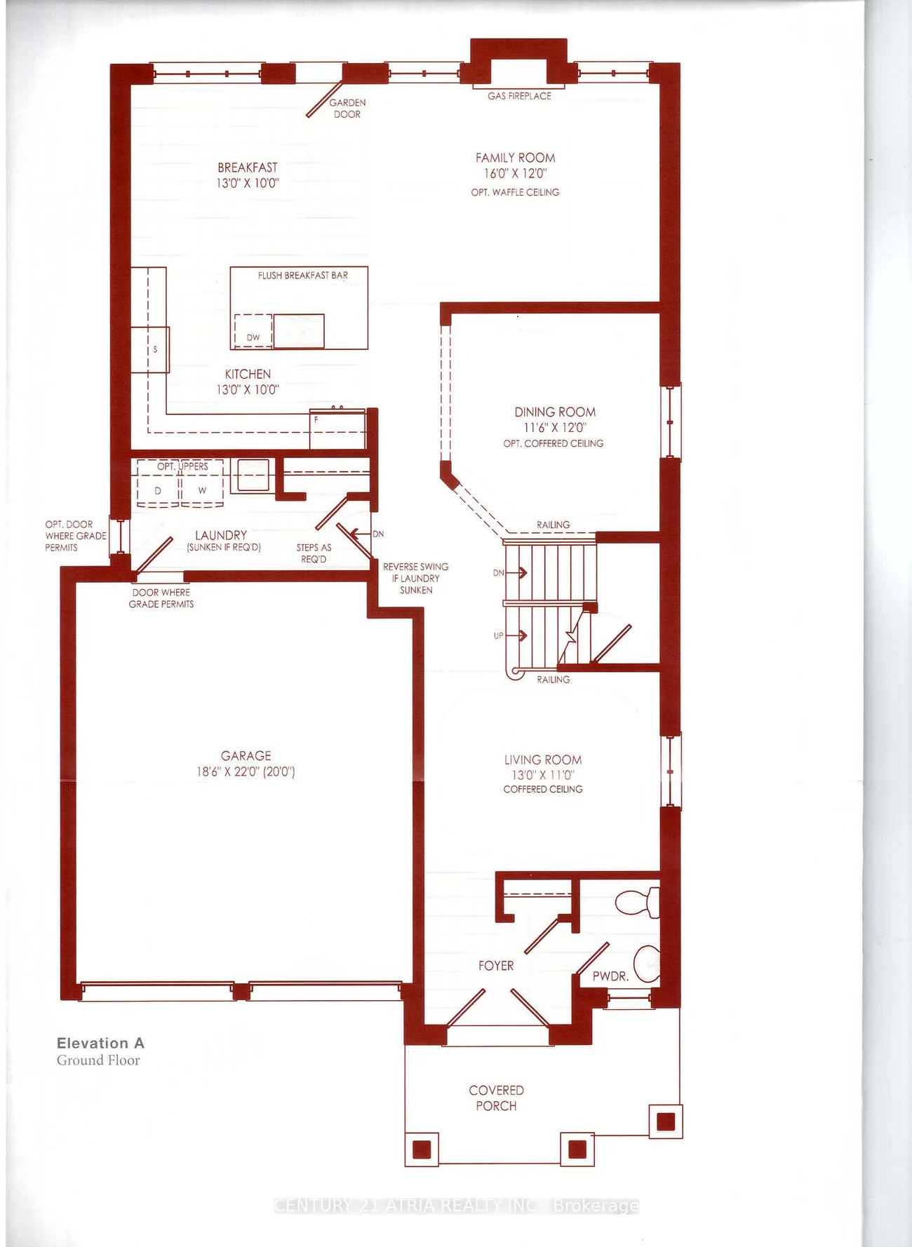
- 2500-3000 SQFT

Description
Residential Freehold Detached For Lease.
Ravine Lot Detached House With Open Concept Floor Plan, Very Spaceful, Light And Comfort. 4 Bedrooms, 9 Ft Ceilings. Central Island With Granite Counter And Beautiful Back Splash In The Kitchen. Gas Fireplace. Quiet Court, Family Oriented Neighbourhood. Close To Hwy 404.
Property Features: Park, Ravine
Laundry Features: Ensuite
Interior Features: None
Cross Street: Leslie/Mt Albert
Direction Faces: South
Key Facts
- Days on: 5 days
- Mls Status: New
- Board Property Type: Free
- Bedrooms Total: 4
- Bedrooms Above Grade: 4
- Den / Family Room: Yes
- Bathrooms Total Integer: 4
- Lot Width: 40.00
- Kitchens Total: 1
- Parking Total: 4
- Parking Spaces: 2
- Parking Features: Private
- Garage Type: Attached
- Heat Source: Gas
- Heat Type: Forced Air
- Cooling: None
- Living Area Range: 2500-3000 Square Feet
Location 37, Ladder, Sharon, East Gwillimbury
Search by Neighbourhoods









