163, Birchlawn, Bolton North, Caledon, Residential Freehold
- 3 beds |
- 3 baths |
- 2000-2500 SQFT

Description
Residential Freehold Detached For Sale.
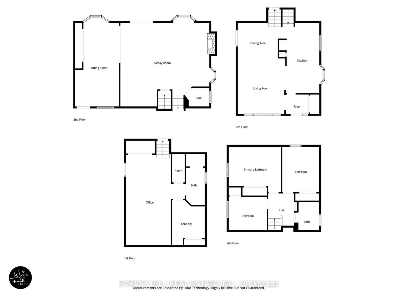
There's so much more space here than you can imagine. You need to see it to believe it. This well-maintained large 4-level back-split, is set on a private, nicely treed quiet, large lot in highly sought-after 'Bolton North', preferred neighbourhood. Featuring 3 spacious bedrooms, 3 bathrooms, a bright open main floor, and a spacious lower-level huge family room with a gas fireplace, and a finished basement with a massive storage area. This home offers both comfort and functionality. The bonus is the addition behind the garage & beside the main floor family room area, with a separate entrance and added floor to ceiling, mirror storage closet and sky-lights , adding additional space to provide options for a possible main floor apartment, a home office for working from home, a gym, a hobby room, or an extended family space. Set on a 50 x 140+ ft lot, the property offers excellent outdoor space, a fenced yard, walk-out deck, and room for future improvements or expansion. The private driveway and attached garage accommodate multiple vehicles, and the home's layout supports both growing families and those seeking multi-purpose living. Location is a standout feature: easy walking distance to schools, several parks, and nearby community amenities. Families & Commuters will appreciate the easy daily routines, while ' Investors ' will note the stable neighbourhood, large lot size, and long-term upside potential. A warm large , welcoming home with flexibility, convenience, and practical value in a family-focused setting. Many updates in the last two years. This may be the one you were looking for. Many recent updates to appreciate. Very well maintained.
Property Features: Park, School
Interior Features: Storage, Water Meter, Water Softener, Water Treatment
Cross Street: Birchlawn x Kingsview
Direction Faces: West
Key Facts
- Days on: 10 days
- Mls Status: Price Change
- Bedrooms Total: 3
- Bedrooms Above Grade: 3
- Den / Family Room: Yes
- Bathrooms Total Integer: 3
- Lot Width: 50.30
- Kitchens Total: 1
- Parking Total: 5
- Parking Spaces: 4
- Garage Type: Attached
- Heat Source: Gas
- Heat Type: Forced Air
- Cooling: Central Air
- Living Area Range: 2000-2500 Square Feet
Location 163, Birchlawn, Bolton North, Caledon
Search by Neighbourhoods

























