351, Parkhurst, Parkway Belt Industrial Area, Brampton, Commercial
MLS® Number W12789148
For Sale $ 995,995
- 1 baths |
- 1454 SQFT

Description
Commercial Commercial Retail For Sale.
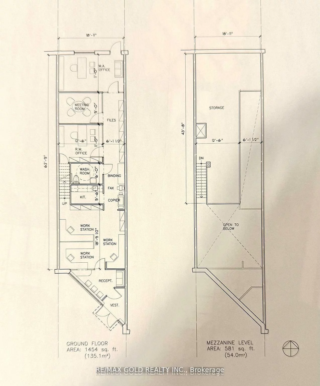
Great opportunity to own your own commercial/retail unit in a highly convenient location near Hwy 407, Steeles Ave, and Airport Road. Ideal for both end-users and investors.Perfect for professional uses such as immigration office, law office, mortgage brokerage, or real estate brokerage. The unit offers approximately 1,454 sq. ft. plus a separate finished office mezzanine of approximately 580 sq. ft., along with a rear entrance for added convenience.Ample parking available. Located next to major new developments, providing excellent growth potential.
Cross Street: Steeles Ave / Airport Rd
Key Facts
- Days on: 8 days
- Mls Status: Sold Conditional
- Bathrooms Total Integer: 1
- Lot Type: Lot
- Garage Type: None
- Heat Type: Gas Forced Air Closed
- Cooling: Yes
- Building Area Total: 1454 Square Feet
- Retail Area: 1454 Sq Ft
Location 351, Parkhurst, Parkway Belt Industrial Area, Brampton
Search by Neighbourhoods























