225, Veterans, Northwest Brampton, Brampton, Residential Condo & Other
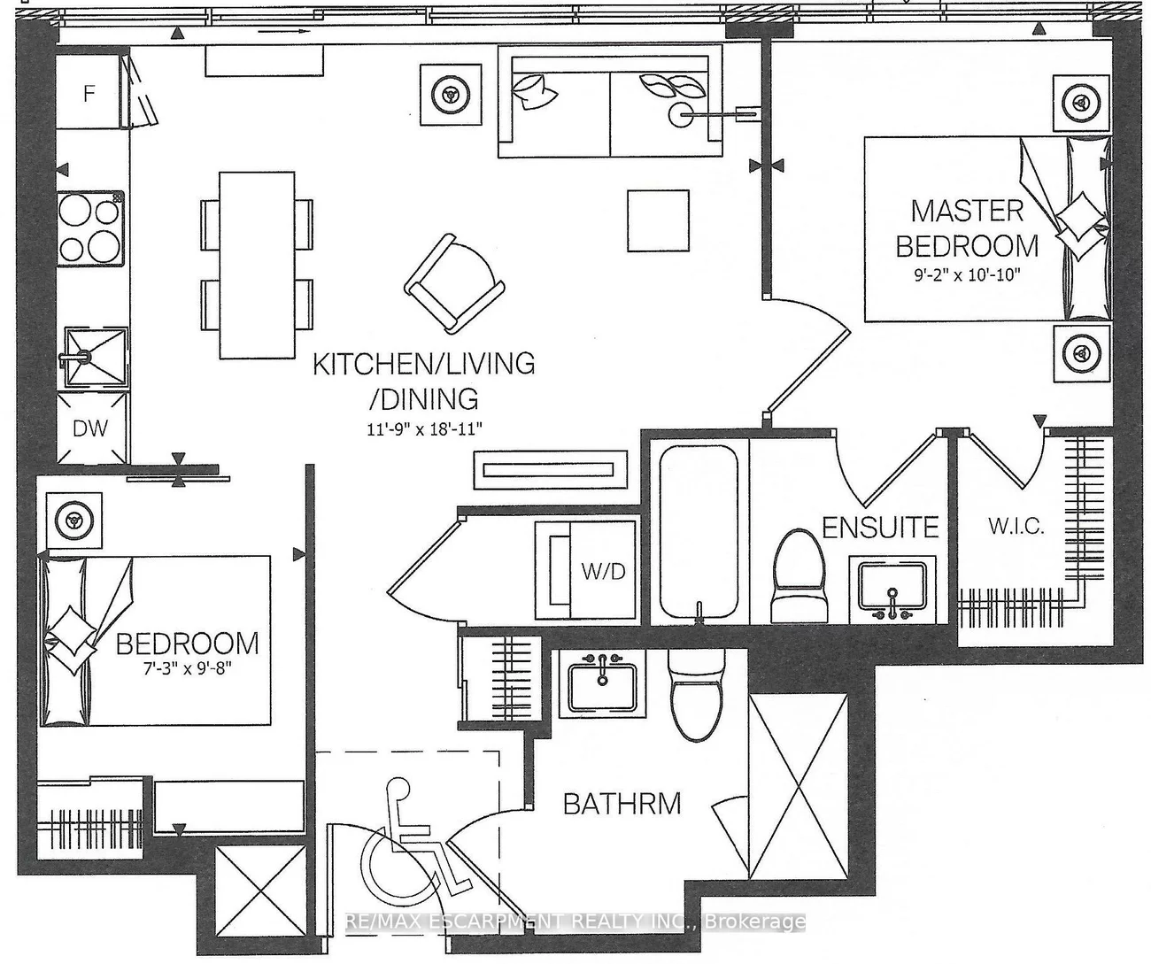
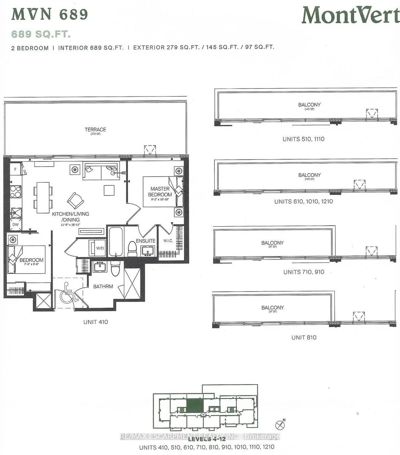
- 2 beds |
- 2 baths |
- 600-699 SQFT

Description
Residential Condo & Other Condo Apartment For Lease.
The lowest price point in the building for any unit of this square footage. Beautiful ~700 square foot, 2-year-old, two-bedroom condo with a large balcony and floor-to-ceiling windows. The second bedroom is small, good for a young child, or a fully enclosed den/office. The building boasts a large array of amenities, including a bar, dining room, games room, gym, lounge, and Wi-Fi lounge. Experience Optimized Living - The quiet ease of Mount Pleasant is augmented by an array of convenient area amenities that ensure you get the most out of life every day. Longo's is just steps away from MontVert, and Mount Pleasant Village Square, with its main-street shops and quaint clock tower, is only a few minutes away. Mount Pleasant Go Train station is just 3 km away.
Property Features: Library, Park, Place Of Worship, Public Transit, Rec./Commun.Centre, School
Laundry Features: Ensuite
Interior Features: Carpet Free, Storage Area Lockers
Cross Street: Sandalwood W & Mississauga Rd
Building Name: Montvert
Key Facts
- Days on: 3 days
- Mls Status: New
- Bedrooms Total: 2
- Bedrooms Above Grade: 2
- Bathrooms Total Integer: 2
- Locker: Owned
- Kitchens Total: 1
- Parking Total: 1
- Parking Features: None
- Garage Type: Underground
- Heat Source: Gas
- Heat Type: Forced Air
- Cooling: Central Air
- Living Area Range: 600-699 Square Feet
Location 225, Veterans, Northwest Brampton, Brampton
Search by Neighbourhoods





















