4060, 10TH, Rural Bradford West Gwillimbury, Bradford West Gwillimbury, Residential Freehold
- 4 beds |
- 3 baths |
- ~100000 SQFT

Description
Residential Freehold Detached For Sale.
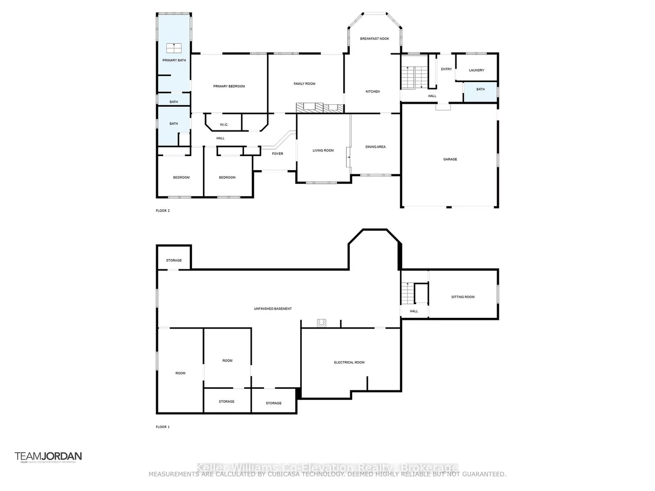
Set on over 10 acres of total privacy and backing onto mature Simcoe County Forest, this exceptional ranch-style bungalow offers the perfect blend of space, comfort, and versatility. Pride of ownership is evident throughout this thoughtfully designed 3-bedroom, 3-bath home with modern touches and generous proportions. The property features an impressive oversized three-bay workshop, ideal for hobbyists, storage, or all your recreational toys. With frontage on two high-traffic roads, a second driveway, and potential for severance and additional builds, this estate offers rare flexibility for future possibilities. Meandering cut trails invite you to explore the grounds by foot or golf cart, all while enjoying the peaceful, natural setting. Inside, the home welcomes you with an attached two-car garage, a spacious living room open to a raised dining area perfect for entertaining, and a bright eat-in kitchen filled with natural light. The cozy family room is anchored by a stunning stone, wood-burning fireplace, creating a warm gathering space. The primary suite features a walk-in closet, ensuite with soaker tub, and walkout to the expansive deck. The landscaped backyard is designed for relaxation and connection, complete with a large deck, stone patio, pergola, an ideal backdrop for quiet evenings or hosting friends and family, while the sun sets The lower level offers a second family room and abundant open space, ready to be customized to suit your needs, making this an excellent option for a growing or multi-generational family. Conveniently located close to Bradford and Highway 400, this one-of-a-kind property delivers privacy, lifestyle, and opportunity in equal measure.
Property Features: Golf, Hospital, Greenbelt/Conservation, Wooded/Treed, School Bus Route
Interior Features: Countertop Range, Water Treatment, Water Heater Owned, Water Softener, Auto Garage Door Remote
Lot Features: Irregular Lot
Cross Street: Yonge St to Line 11, R on 10th Side Road
Direction Faces: West
Key Facts
- Days on: 1 days
- Mls Status: New
- Bedrooms Total: 4
- Bedrooms Below Grade: 1
- Bedrooms Above Grade: 3
- Den / Family Room: Yes
- Bathrooms Total Integer: 3
- Lot Width: 210.53
- Kitchens Total: 1
- Parking Total: 22
- Parking Spaces: 20
- Parking Features: Private, Other
- Garage Type: Attached
- Heat Source: Oil
- Heat Type: Forced Air
- Cooling: Central Air
- Lot Size Area: 10 Acres
- Living Area Range: 2000-2500 Square Feet
Location 4060, 10TH, Rural Bradford West Gwillimbury, Bradford West Gwillimbury
Search by Neighbourhoods

























