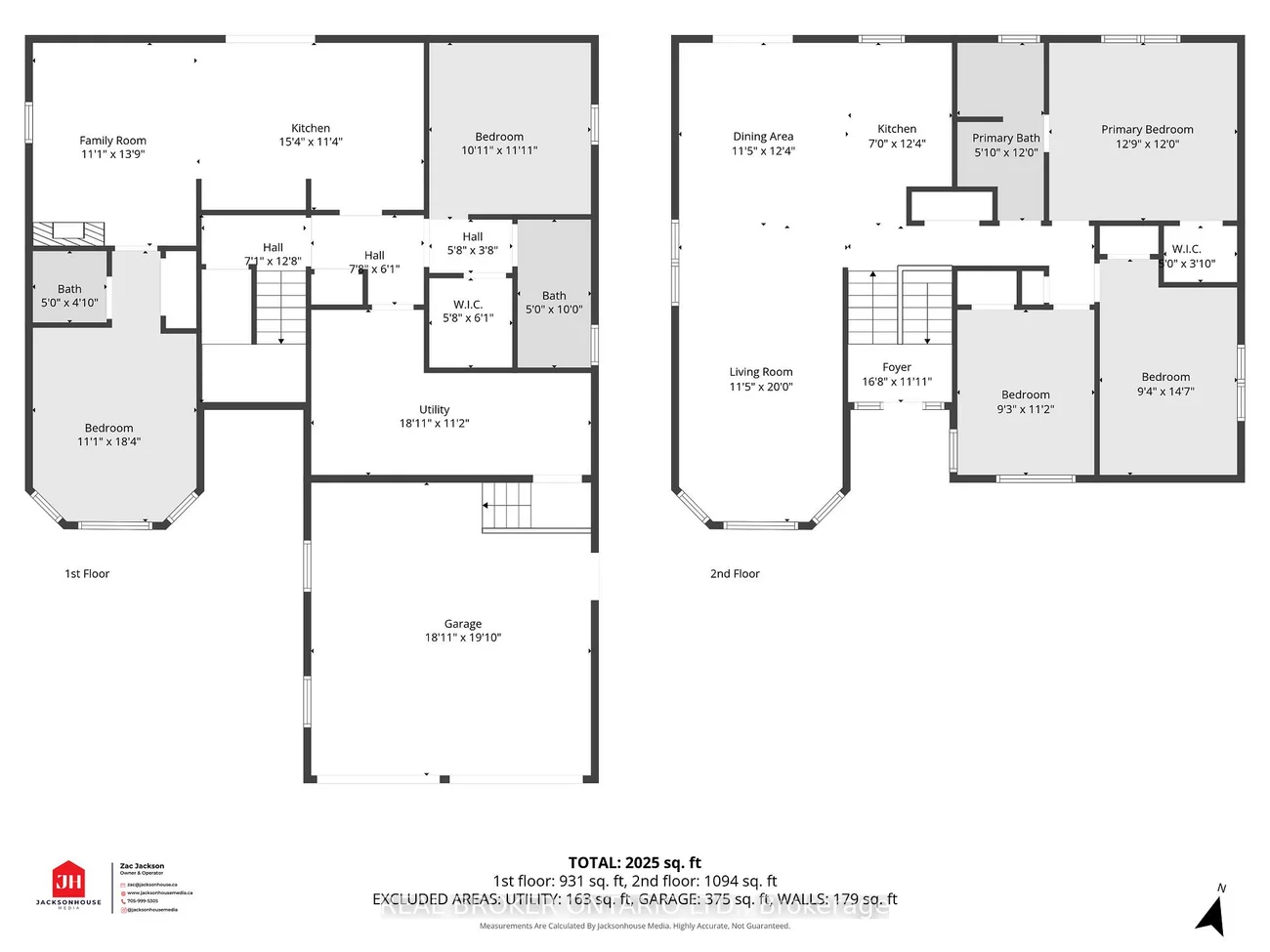
22, Countryside, Bradford, Bradford West Gwillimbury, Residential Freehold
- 5 beds |
- 3 baths |
- 5761 SQFT

Description
Residential Freehold Detached For Sale.
Welcome to 22 Countryside Court, where comfort, style, and space finally get along. Tucked into one of the area's most sought-after neighbourhoods, this updated home delivers the kind of flexibility families dream about-complete with a bright in-law suite that's perfect for multi generational living, guests, or some additional income potential. Inside, you'll find a home that has been lovingly upgraded with modern finishes and refreshed living spaces. The main level offers warm, inviting rooms with an updated open concept kitchen ideal for family dinners. The walkout to the composite deck, allows you to easily host your favourite people for a weekend bbq or unwind after a long day. Downstairs, the in-law suite features its own kitchen complete with granite countertops, stainless steel appliances and a walk out to the backyard. The cozy fireplace adds warmth and comfort to the living area, while two bedrooms and two bathrooms gives everyone the privacy they want with the space they need.Outside, the property sits on a quiet court with friendly neighbours and low traffic, perfect for families. If you've been waiting for a home with space, updates, and a neighbourhood that feels like a hug, you'll want to see this one in person.
Interior Features: Carpet Free, In-Law Suite, Primary Bedroom - Main Floor
Cross Street: Line 8 and Northgate Drive
Direction Faces: North
Key Facts
- Days on: 5 days
- Mls Status: New
- Bedrooms Total: 5
- Bedrooms Below Grade: 2
- Bedrooms Above Grade: 3
- Den / Family Room: Yes
- Bathrooms Total Integer: 3
- Lot Width: 49.21
- Kitchens Total: 2
- Parking Total: 4
- Parking Spaces: 2
- Garage Type: Built-In
- Heat Source: Gas
- Heat Type: Forced Air
- Cooling: Central Air
- Lot Size Area: 5760 Square Feet
- Living Area Range: 1100-1500 Square Feet
Location 22, Countryside, Bradford, Bradford West Gwillimbury
Search by Neighbourhoods

























