58, Collings, Bradford, Bradford West Gwillimbury, Residential Freehold
- 3 beds |
- 2 baths |
- 1100-1500 SQFT

Description
Residential Freehold Detached For Sale.
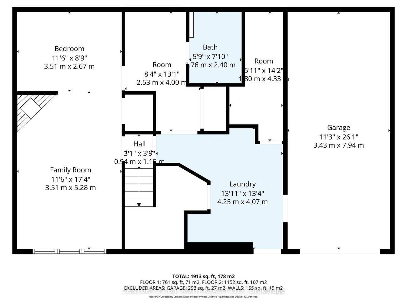
Imagine coming home to a place that feels built around the rhythm of family life. Warm mornings, laughter in the kitchen, and quiet evenings on the new deck. This beautifully updated Bradford home blends comfort, character, and thoughtful design. Step inside and you'll find a bright, open main floor where everything feels new and inviting. The kitchen, bathroom, and floors were all updated in 2020, giving the home a fresh and modern feel. At the heart of the home is the custom kitchen with a large quartz island. It's the kind of space where weekend brunches linger and conversations flow easily. The kitchen opens directly to your private backyard, surrounded by mature trees. The gentle sound of the running pond feature adds a calming backdrop, while the irrigation system keeps the yard low-maintenance and green. The fully finished walk-out basement offers an in-law suite, perfect for extended family, guests, or a quiet workspace. Every detail has been cared for, from the garage door added in 2022, to the new eavestroughs and updated electrical panel installed in 2020. These upgrades provide both peace of mind and lasting value. Located in the heart of Bradford, this home sits just steps from local shops, parks, and everyday conveniences. Close enough to walk, yet peaceful enough to feel like your own private retreat. This isn't just a house. It's where your next chapter begins, filled with comfort, connection, and moments that truly feel like home.
Property Features: Fenced Yard, Public Transit, School
Interior Features: In-Law Capability, Water Heater
Cross Street: Collings Ave/ Holland St W
Direction Faces: West
Key Facts
- Days on: 4 days
- Mls Status: Sold Conditional
- Bedrooms Total: 3
- Bedrooms Above Grade: 3
- Bathrooms Total Integer: 2
- Lot Width: 110.07
- Kitchens Total: 1
- Parking Total: 4
- Parking Spaces: 3
- Parking Features: Private Triple
- Garage Type: Attached
- Heat Source: Gas
- Heat Type: Forced Air
- Cooling: Central Air
- Living Area Range: 1100-1500 Square Feet
Location 58, Collings, Bradford, Bradford West Gwillimbury
Search by Neighbourhoods

























