36, Veterans, Bradford, Bradford West Gwillimbury, Residential Freehold
- 3 beds |
- 3 baths |
- 1946 SQFT

Description
Residential Freehold Att/Row/Townhouse For Lease.
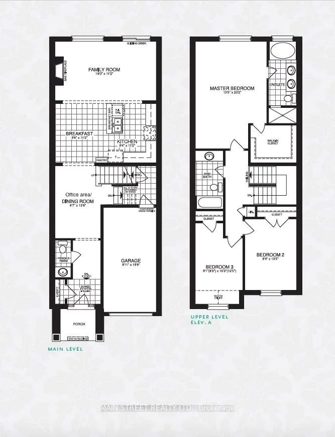
EXCELLENT LOCATION! This 1,815 sq ft Fully Upgraded Luxury Home offers an Open concept eat-in kitchen with large centre island with quartz counters & backsplash, 5 burner gas range, 9ft ceilings on main & 2nd floor, smooth ceilings, pot-lights, hardwood & quartz counters thru-out, gas fireplace, custom window coverings, open-concept dining/office space on main fl. Unfinished basement perfect for home gym. Mins to schools, community centre, transit, GO Station, Hwy#400 and all amenities.
Property Features: Fenced Yard, Level, School, Public Transit, Rec./Commun.Centre
Laundry Features: In Basement
Interior Features: Carpet Free, Central Vacuum, Storage, Auto Garage Door Remote
Cross Street: Holland St. W. & Melbourne Dr
Direction Faces: North
Key Facts
- Days on: 11 days
- Mls Status: New
- Bedrooms Total: 3
- Bedrooms Above Grade: 3
- Bathrooms Total Integer: 3
- Lot Width: 20.01
- Kitchens Total: 1
- Parking Total: 2
- Parking Spaces: 1
- Parking Features: Mutual
- Garage Type: Attached
- Heat Source: Gas
- Heat Type: Forced Air
- Cooling: Central Air
- Lot Size Area: 1945 Square Feet
- Living Area Range: 1500-2000 Square Feet
Location 36, Veterans, Bradford, Bradford West Gwillimbury
Search by Neighbourhoods
