130, Athabaska, Holly, Barrie, Residential Freehold
- 4 beds |
- 2 baths |
- 1100-1500 SQFT

Description
Residential Freehold Detached For Sale.
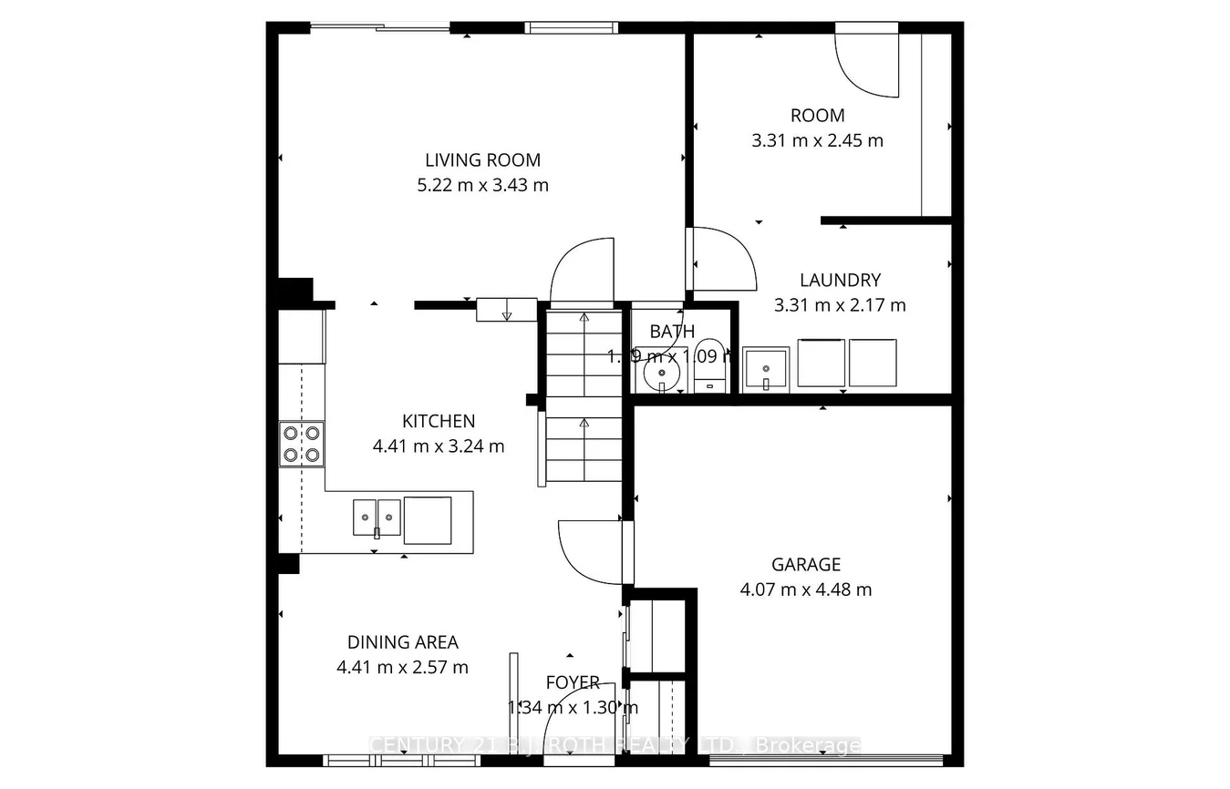
Tucked into the sought-after Holly neighbourhood in Barrie's south end, this backsplit bungalow offers the perfect blend of comfort, function, and family-friendly living. Known for its established schools, parks, and easy access to Highway 400, this area continues to be a favourite for commuters and growing families alike, with a brand-new plaza nearby adding even more everyday convenience right around the corner. Inside, the home offers a thoughtful layout with three bedrooms on the upper level, complemented by a full bathroom, plus an additional bedroom in the lower level for added flexibility. A well-placed powder room on the main floor adds everyday convenience, while inside access to the garage keeps life practical year-round. The main living space feels open and welcoming, featuring a dedicated dining area and a bright living room that walks out through patio doors to the backyard, an easy extension of your living space in the warmer months. A separate laundry room, tucked just off the living area, adds functionality without compromising flow. Over the years, the home has been carefully maintained and thoughtfully improved, including a newer front door (2023), garage door (2021), along with updated windows, and key mechanicals such as the roof and furnace having been replaced within the last decade, offering peace of mind for years to come. Lovingly cared for by the same owner for nearly 20 years, this home carries a sense of pride throughout. It's the kind of place you move into and immediately feel at ease, just in time to settle in and enjoy summer in your new home.
Property Features: Fenced Yard, Public Transit
Interior Features: Auto Garage Door Remote
Cross Street: Essa and Athabaska
Direction Faces: North
Key Facts
- Days on: 1 days
- Mls Status: Sold Conditional
- Bedrooms Total: 4
- Bedrooms Below Grade: 1
- Bedrooms Above Grade: 3
- Bathrooms Total Integer: 2
- Lot Width: 39.37
- Kitchens Total: 1
- Parking Total: 2
- Parking Spaces: 1
- Garage Type: Attached
- Heat Source: Gas
- Heat Type: Forced Air
- Cooling: Central Air
- Living Area Range: 1100-1500 Square Feet
Location 130, Athabaska, Holly, Barrie
Search by Neighbourhoods

























