84, Wellington, Wellington, Barrie, Residential Freehold
- 4 beds |
- 2 baths |
- 2500-3000 SQFT

Description
Residential Freehold Detached For Sale.
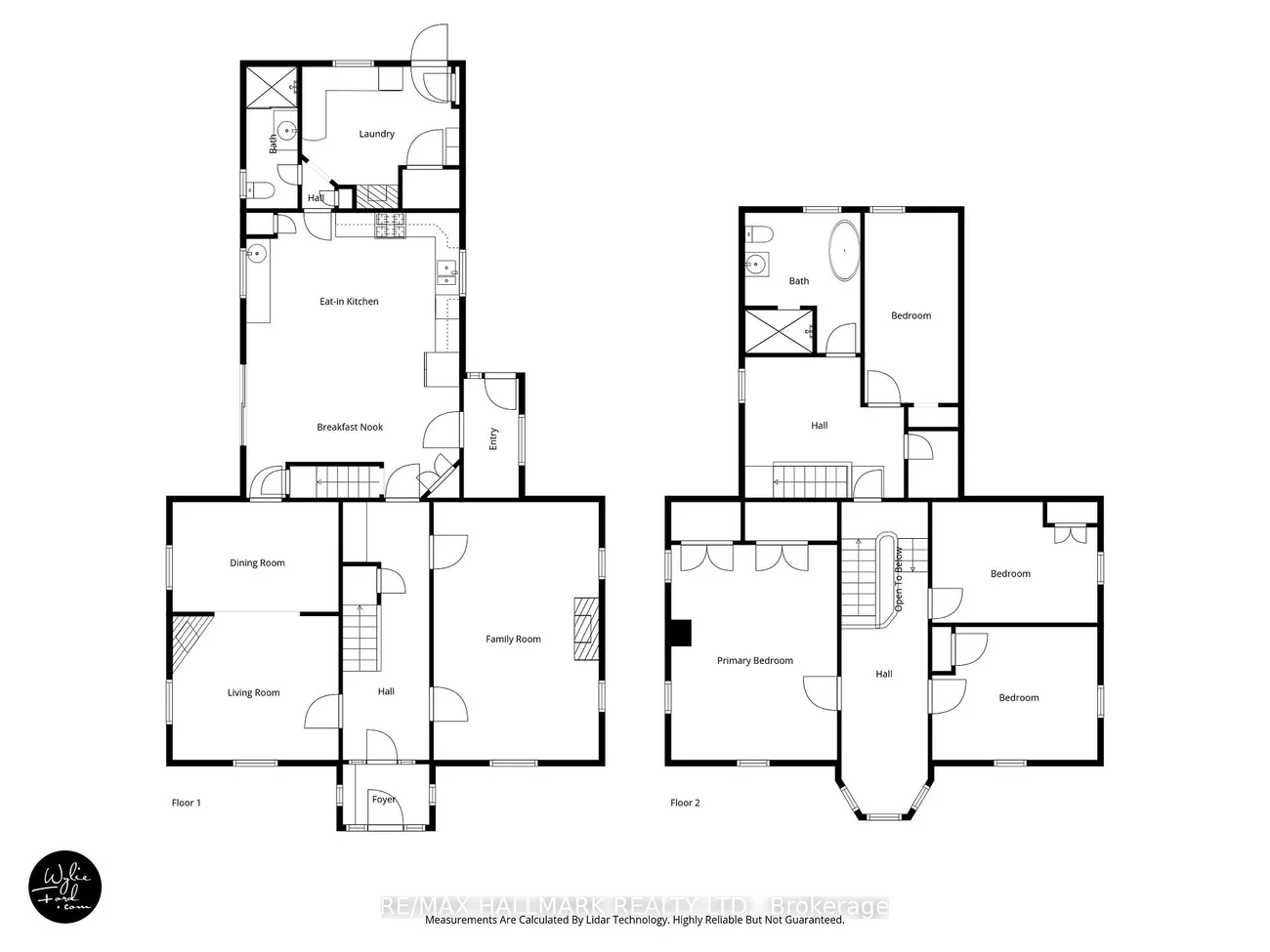
Experience Timeless Charm In This 4-Bed, 2-Bath Architectural Gem In Barrie's City Centre. Originally Designed By Famed Architect Eustace Bird, This Home Blends Historic Craftsmanship With Smart Modern Updates. With Soaring 10-Ft Ceilings, Original Wood Staircase, 12 Inch Baseboards, A Metal Roof (2017) And Thoughtful Restoration, This Residence Beautifully Preserves Its Heritage While Accommodating Today's Lifestyle. Enjoy 2,700+ Sq. Ft. Of Character-Filled Living Space Including A Renovated Kitchen With Heated Floors And Walkout To The Backyard Oasis Featuring A Lush Fenced Yard With Pond And Tiki Bar. Nestled In Barrie's City Centre, This Home Offers The Best Of Both Worlds - Historic Streetscape Charm With Proximity To Modern Amenities. Just A Short Walk To Downtown Shops, Dining, Parks, Schools, And The Waterfront.
Interior Features: Other
Cross Street: Bayfield St / Wellington St E
Direction Faces: North
Key Facts
- Days on: 1 days
- Mls Status: New
- Bedrooms Total: 4
- Bedrooms Above Grade: 4
- Den / Family Room: Yes
- Bathrooms Total Integer: 2
- Lot Width: 60.00
- Kitchens Total: 1
- Parking Total: 3
- Parking Spaces: 2
- Parking Features: Private Double
- Garage Type: Detached
- Heat Source: Gas
- Heat Type: Forced Air
- Cooling: Central Air
- Living Area Range: 2500-3000 Square Feet
Location 84, Wellington, Wellington, Barrie
Search by Neighbourhoods

























