90, BIRKHALL, Innis-Shore, Barrie, Residential Freehold
- 5 beds |
- 4 baths |
- 2500-3000 SQFT

Description
Residential Freehold Detached For Sale.
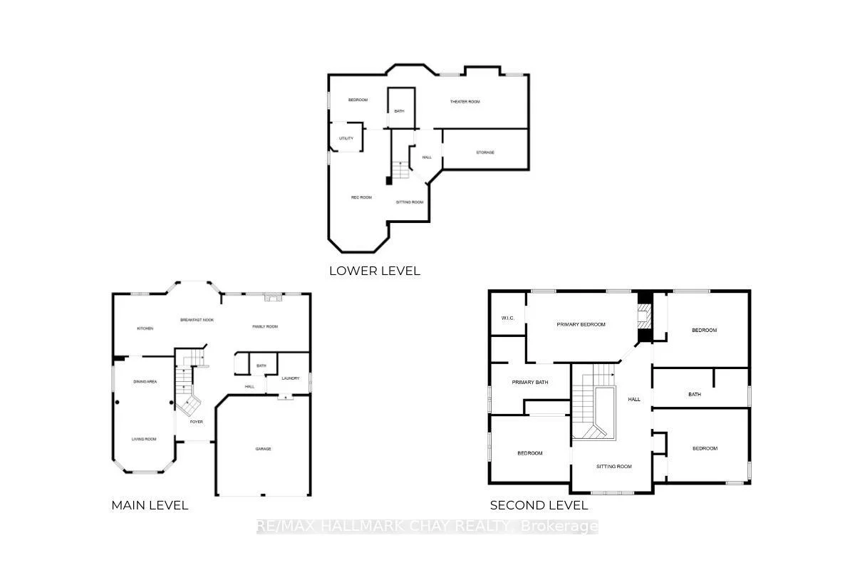
Welcome to 90 Birkhall Place - an EXCEPTIONAL home in the sought-after family-centric community of Innis-shore in Barrie. Offering stunning curb appeal as one of the larger lots of the neighbourhood, this professionally landscaped property backs onto lush trails, tranquil green space, and a serene stream. Bold, elegant foyer with double door entry, open to above, leads into this meticulously maintained, upgraded 3,600+ sqft of finished living space offering 4+1 bedrooms, 3+1 bathrooms, full finished lower level. Extend your functional living space outdoors and appreciate the added luxury of your own personal swim spa. From tranquil morning coffee to al fresco dinners with loved ones, this backyard is more than a feature -it's a lifestyle. With high-end finishes throughout this home, you will notice attention to detail, style and function at every turn. Pride of ownership and thoughtful design is evident with seamless flow from room to room and updates that elevate both style & comfort. Chef-inspired kitchen boasts stunning two-tone cabinetry, quartz countertops, undermount sink, porcelain floor tiles, waterfall island, bev fridge, plenty of cabinets, as well as top-tier appliances, perfect for everyday meals & gourmet creations. Walk out to expansive rear deck from bright breakfast room. Family rm feature wall with chic b/I shelves, cozy gas fireplace for cooler evenings, accent windows - overlooking the fully fenced private rear yard. Combined living/dining features hardwood floor, two-story windows, crown moulding, decorative columns -pure sophistication. Private zone of this home offers a flexible loft space -home office, study zone -the choice is yours. Spacious primary suite with gas fireplace, spa-like ensuite, abundance of closet space. Three bedrooms, main bath complete the upper level. Full, finished lower level extends your interior living space further with an additional bedroom and full bath, spacious rec room with pool table and entertainment station.
Property Features: Greenbelt/Conservation, Public Transit, Park, Library, Hospital, Fenced Yard
Interior Features: Central Vacuum
Cross Street: Big Bay Point Rd/Sandringham Dr/Birkhall Pl
Direction Faces: North
Key Facts
- Days on: 0 days
- Mls Status: New
- Bedrooms Total: 5
- Bedrooms Below Grade: 1
- Bedrooms Above Grade: 4
- Den / Family Room: Yes
- Bathrooms Total Integer: 4
- Lot Width: 41.40
- Kitchens Total: 1
- Parking Total: 6
- Parking Spaces: 4
- Parking Features: Private Double
- Garage Type: Attached
- Heat Source: Gas
- Heat Type: Forced Air
- Cooling: Central Air
- Living Area Range: 2500-3000 Square Feet
Location 90, BIRKHALL, Innis-Shore, Barrie
Search by Neighbourhoods

























