11, Patterson, 400 North, Barrie, Commercial
- 2 baths |
- 3080 SQFT

Description
Commercial Office For Sale.
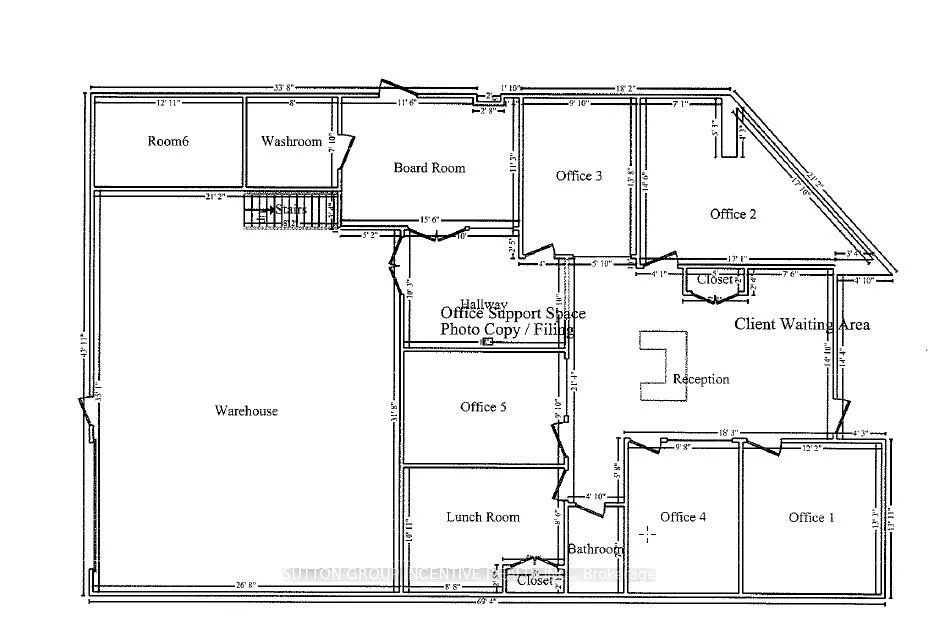
Stop paying someone else's mortgage -- own your workspace in the heart of Barrie, just minutes from downtown and Hwy 400. This professionally finished office spans two commercial condo units and was fully renovated in 2019. The front office area features a welcoming reception, waiting area, bright boardroom with custom glass doors, staff/lunch room, four private offices, open work area, and two washrooms -- ideal for a wide range of professional users. At the rear, utilize an approximate 740 SF of warehouse space with a 19' clear height and a 10' x 12' roll-up door, plus an additional 182 SF mezzanine for extra storage. Comfort and efficiency are covered with ductless heat pumps in the front offices for added cooling (2020), updated central air (2020), and a new forced-air natural gas furnace (2023).Included are a built-in custom desk and hutch in the angled office, custom blinds throughout, fridge, dishwasher, microwave, HWT (owned) and boardroom table. Additional furnishings (including copier) may be available, subject to negotiation. Flexible possession. Monthly condo fees of $775.93 include water/sewer, snow removal, landscaping, insurance, management, non-exclusive parking, and building envelope maintenance.
Community Features: Major Highway, Public Transit
Cross Street: Tiffin Street & Patterson Road
Key Facts
- Days on: 36 days
- Mls Status: New
- Bathrooms Total Integer: 2
- Lot Type: Lot
- Garage Type: None
- Heat Source: Gas
- Heat Type: Gas Forced Air Closed
- Cooling: Yes
- Building Area Total: 3080 Square Feet
Location 11, Patterson, 400 North, Barrie
Search by Neighbourhoods

























