600, Alex Gardner, Aurora Village, Aurora, Residential Condo & Other
- 2 beds |
- 3 baths |
- 900-999 SQFT

Description
Residential Condo & Other Condo Townhouse For Lease.
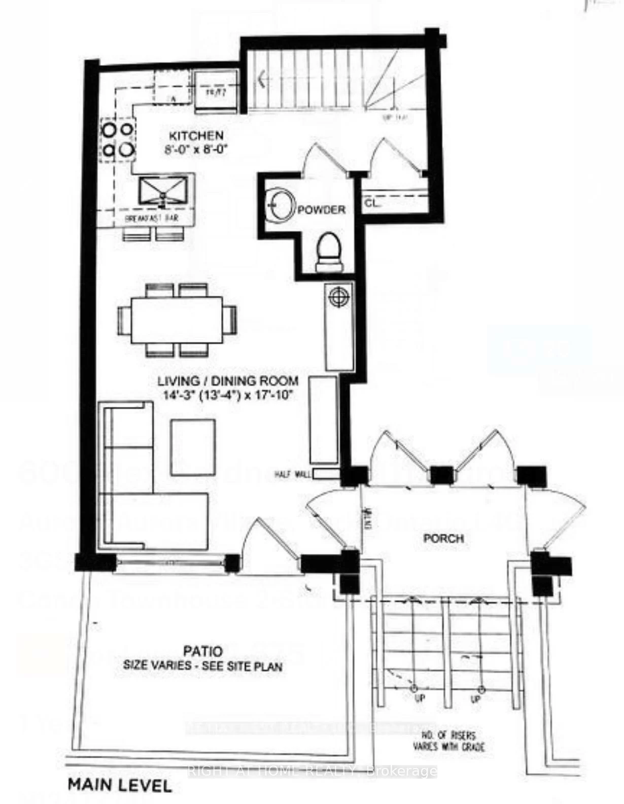
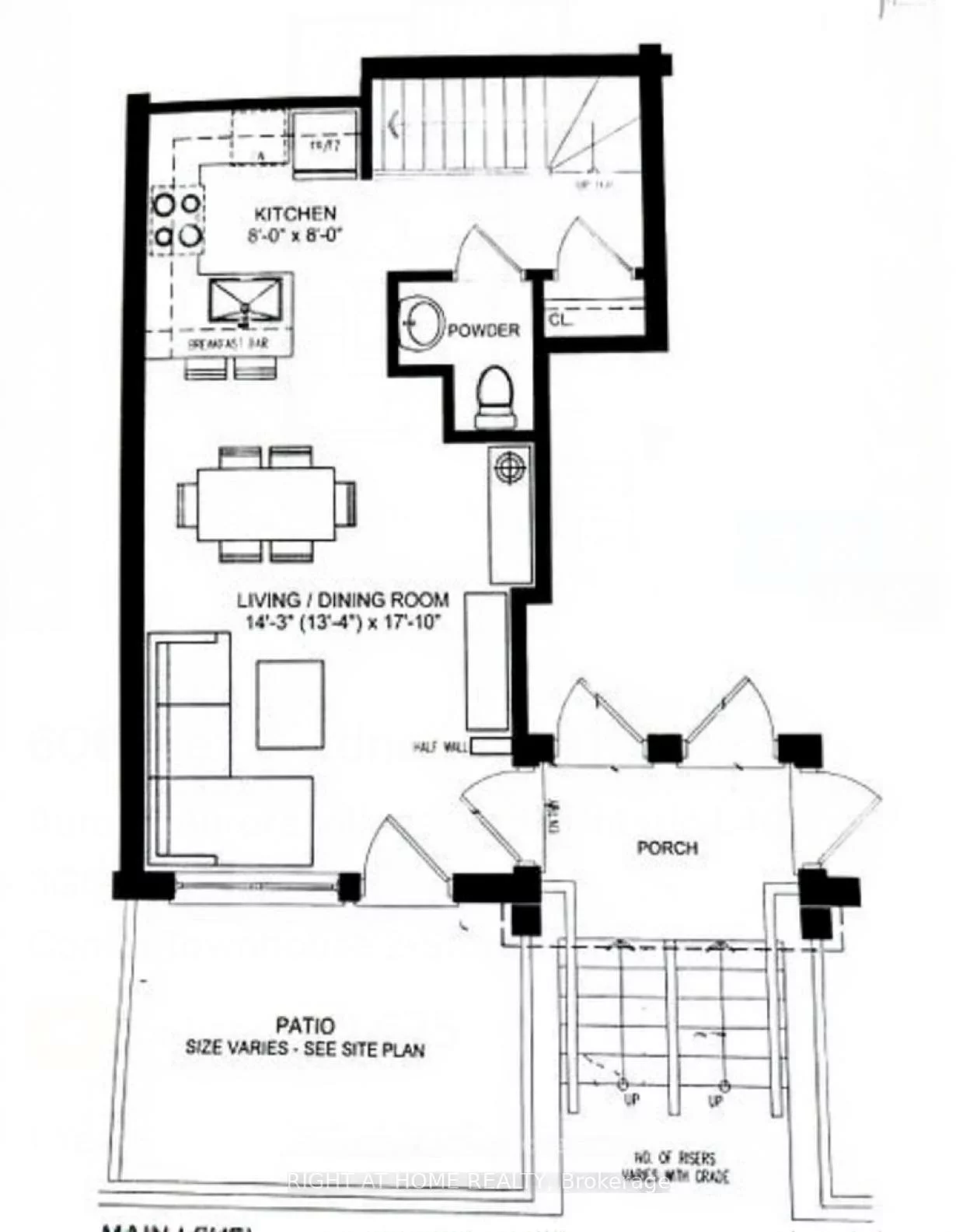
Modern 2 Bedroom Townhouse in Prime Aurora Location. Bright and open layout with laminate flooring throughout. The white chef style kitchen, quartz countertops, stainless steel appliances. Enjoy three fully upgraded bathrooms with contemporary cabinetry and stylish plumbing fixtures. A spacious balcony with gas BBQ hook up and water tap adds a perfect spot for summer cooking or relaxing. Includes one underground parking, visitor parking, and a large storage locker. Just steps from Viva & YRT bus stops, and close to the Yonge/Wellington shops and services.
Laundry Features: Ensuite
Interior Features: Separate Hydro Meter, Carpet Free
Cross Street: Yonge St & Wellington Ave
Key Facts
- Days on: 12 days
- Mls Status: New
- Bedrooms Total: 2
- Bedrooms Above Grade: 2
- Bathrooms Total Integer: 3
- Locker: Owned
- Kitchens Total: 1
- Parking Total: 1
- Parking Features: Underground
- Garage Type: Underground
- Heat Source: Gas
- Heat Type: Forced Air
- Cooling: Central Air
- Living Area Range: 900-999 Square Feet
Location 600, Alex Gardner, Aurora Village, Aurora
Search by Neighbourhoods

























