75, Haist, Pine Valley Business Park, Vaughan, Commercial
MLS® Number N12418559
For Lease $ 16
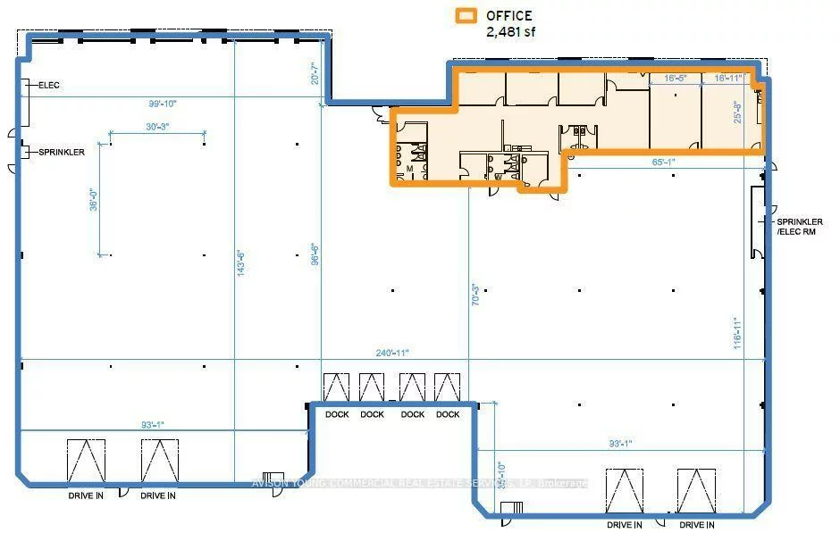
- 33132 SQFT

Description
Commercial Industrial For Lease.
Freestanding building with heavy power in the Pine Valley Business Park! Recently renovated offices. Motion sensor LED lighting and radiant heating throughout warehouse. 4 drive in doors, 2 of which are oversized. 4 truck level doors equipped with automatic levelers. Quick access to Highways 407 and400. Ideal for light manufacturing/assembly and traditional warehouse users. AAA landlord.
Cross Street: Pine Valley Drive & Highway 7
Key Facts
- Days on: 0 days
- Mls Status: New
- Lot Type: Building
- Garage Type: Outside/Surface
- Heat Type: Radiant
- Cooling: Partial
- Building Area Total: 33132 Square Feet
- Lot Size Area: 1 Acres
Location 75, Haist, Pine Valley Business Park, Vaughan
Search by Neighbourhoods



















