251, Jarvis, Church-Yonge Corridor, Toronto, Residential Condo & Other
- 2 beds |
- 1 baths |
- 500-599 SQFT

Description
Residential Condo & Other Condo Apartment For Sale.
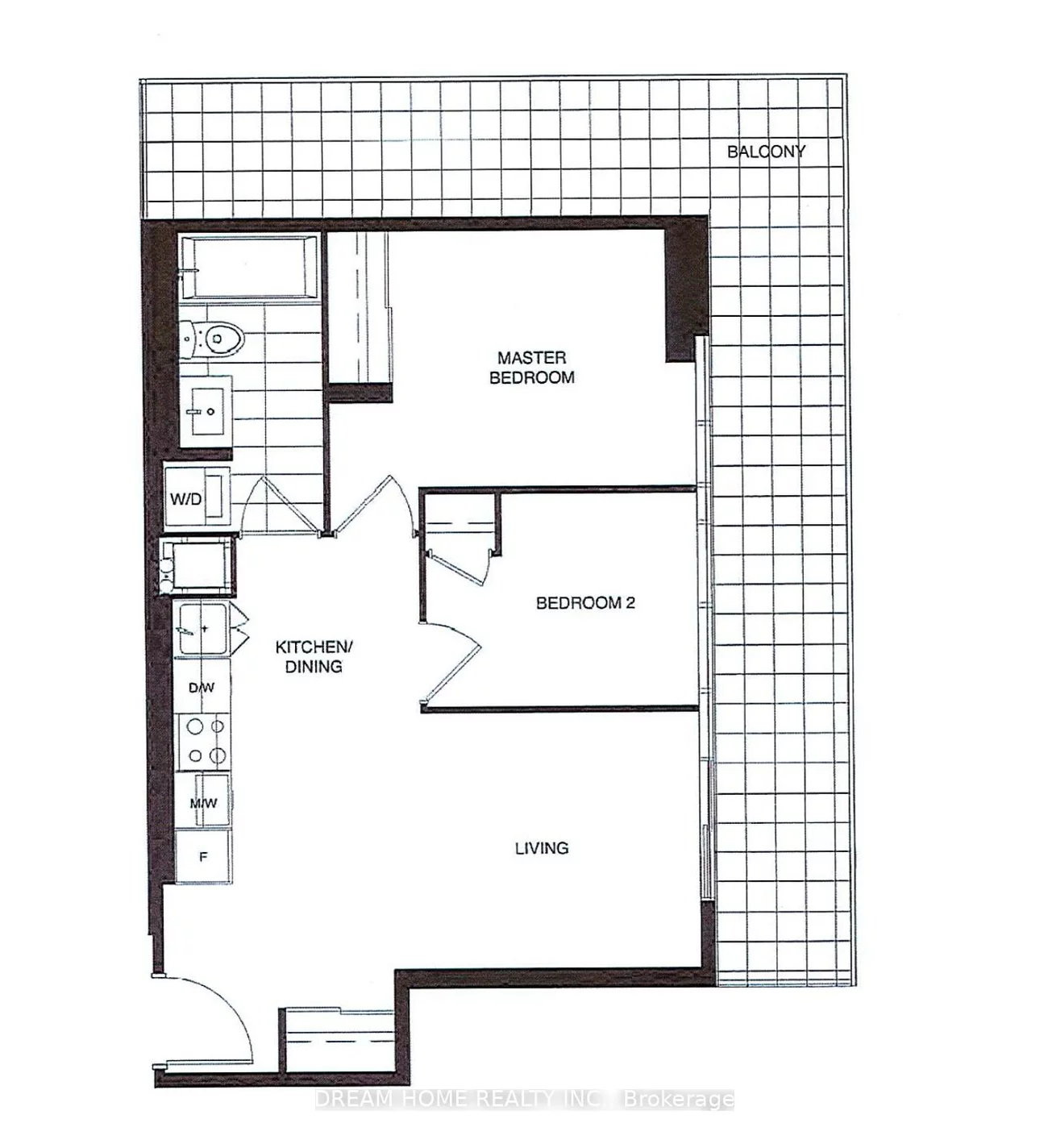
Amazing 2 Bedroom Corner Unit with Great Natural Lights, Unobstructed E Views! L Shaped Big Balcony Enjoy Views of North, East and South Lake View! Modern Open Kitchen W/Quart Counter,Open Concept 2Bed Unit In The Heart Of Downtown Toronto.Floor To Ceiling Windows.Perfect For Young Professionals Or Students. Short Walk Away From Ryerson University, Dundas Subway Station, Eaton Center, And Various Grocery Stores Such As Loblaws, Metro, And Rabba. Additionally, The Condominium Includes Td Bank, Mini Market, Starbucks, And Tim Hortons, Making It Easy For You To Get Your Daily Needs. ***
Laundry Features: In-Suite Laundry
Interior Features: None
Cross Street: Jarvis/Dundas
Key Facts
- Days on: 0 days
- Mls Status: New
- Bedrooms Total: 2
- Bedrooms Above Grade: 2
- Bathrooms Total Integer: 1
- Locker: Owned
- Kitchens Total: 1
- Garage Type: Underground
- Heat Source: Gas
- Heat Type: Forced Air
- Cooling: Central Air
- Living Area Range: 500-599 Square Feet
Location 251, Jarvis, Church-Yonge Corridor, Toronto
Search by Neighbourhoods














