2, Eastern, Moss Park, Toronto, Commercial
- 5597 SQFT

Description
Commercial Commercial Retail For Lease.
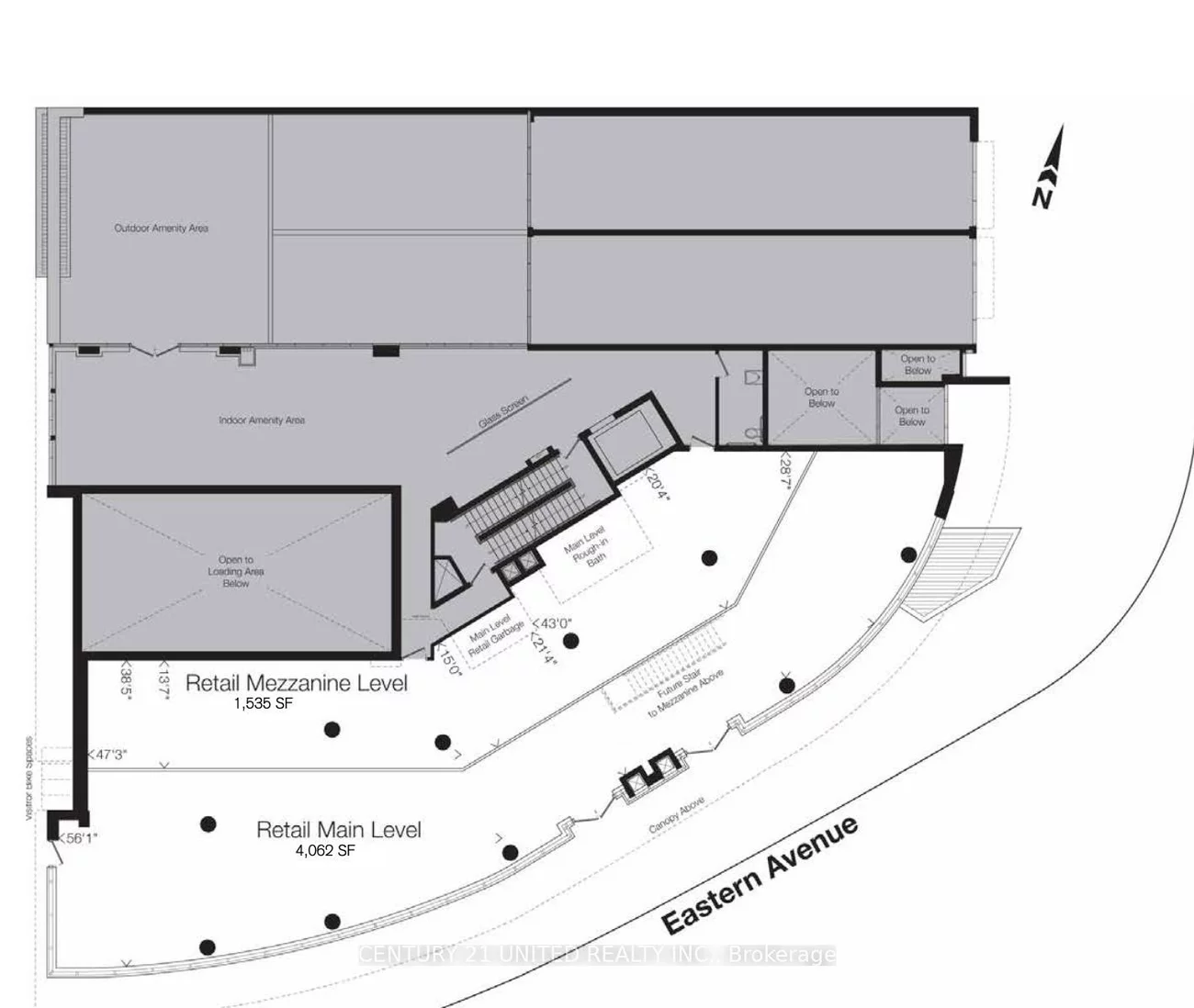
This 5,597 sq. ft. street front commercial condo unit features excellent corner exposure with over 50 feet of frontage and includes one surface parking spot. This unit consists of a ground floor and a fully constructed mezzanine with 20-foot ceilings. Located in the vibrant areas of the Distillery District, Canary District, and West Don Lands. The unit is minutes from King Street East and the 504 streetcar, with easy access to the DVP and Gardiner Expressway. It is part of Trinity Lofts, an eight-story residential development by Streetcar Developments and Dream, completed in 2013. This location is ideal for businesses seeking to thrive in a continuously evolving area of downtown Toronto. Zoning allows for many permitted uses. Property also available for Sale MLS #C8266440. **EXTRAS** Condo fees include P1-03 Parking spot
Cross Street: Parliament / Front
Key Facts
- Days on: 2 days
- Mls Status: New
- Lot Type: Lot
- Garage Type: Covered
- Heat Type: Gas Forced Air Open
- Cooling: Yes
- Building Area Total: 5597 Square Feet
- Retail Area: 5597 Sq Ft
Location 2, Eastern, Moss Park, Toronto
Search by Neighbourhoods










