453, Church, Church-Yonge Corridor, Toronto, Commercial
- 1 baths |
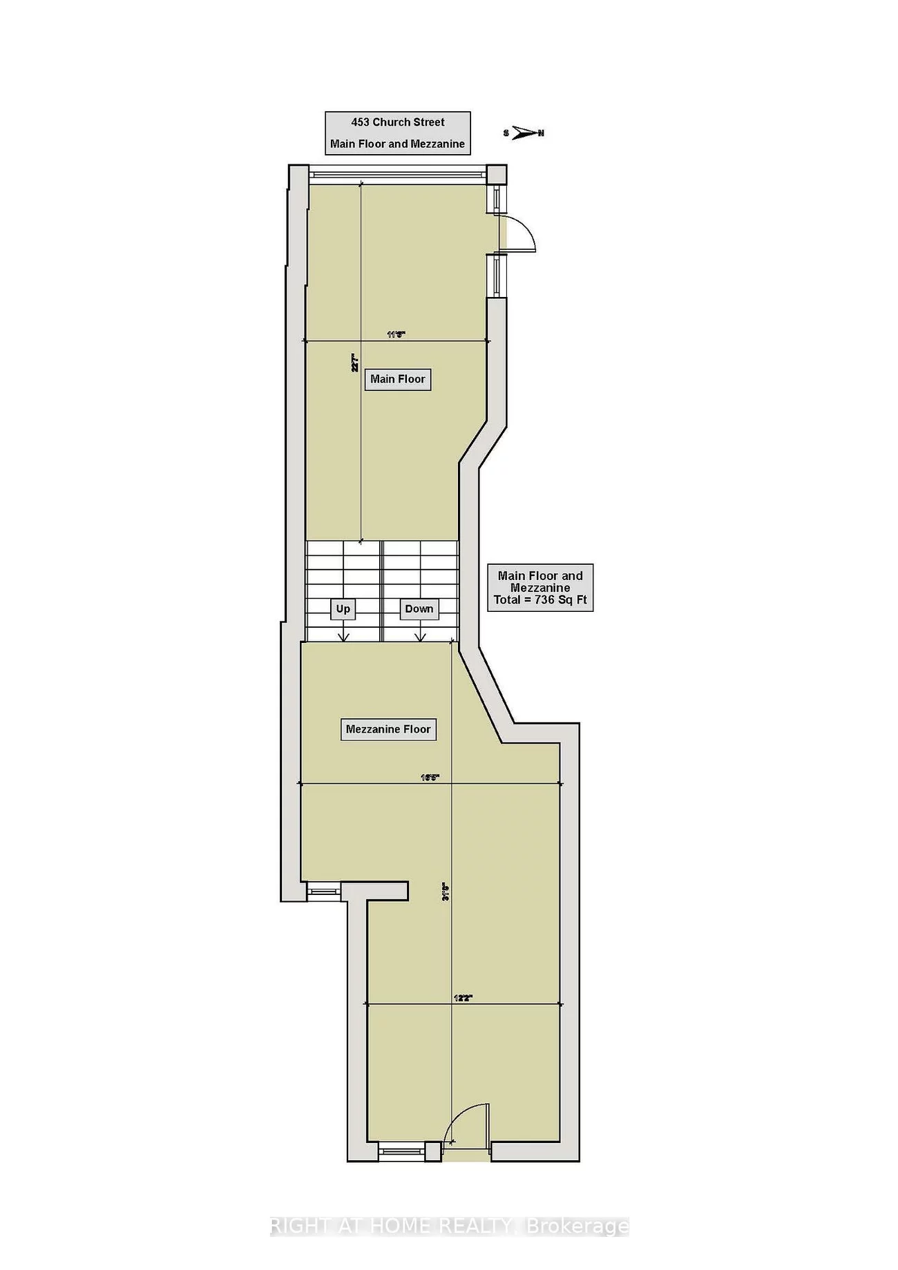
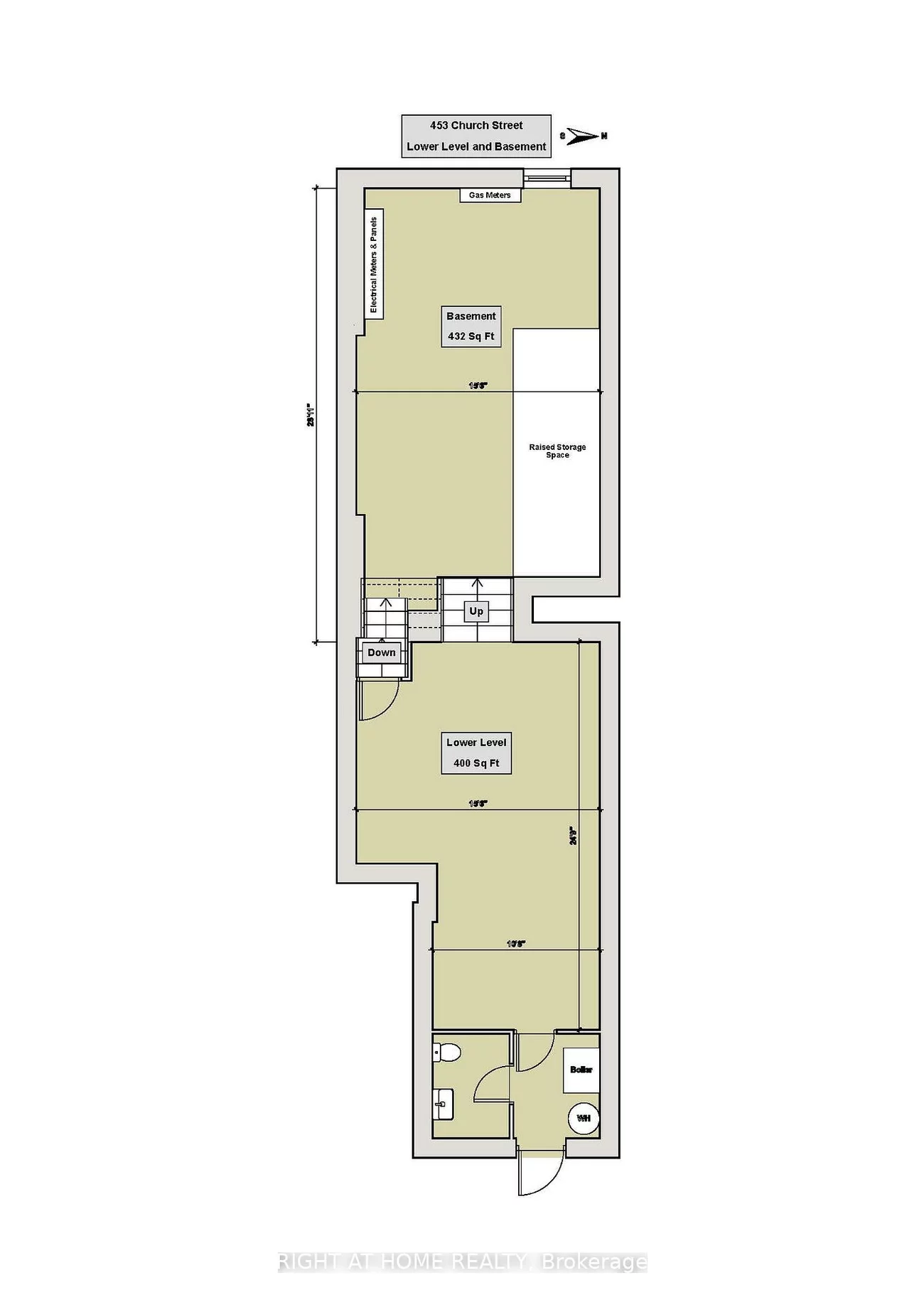
- 1555 SQFT

Description
Commercial Commercial Retail For Lease.
Nestled at the vibrant intersection of Church Street and Maitland, this commercial unit offers an enticing opportunity in the very heart of Church Street Village, one of the citys most dynamic and sought-after districts. Surrounded by boutique shops, cafés, professional offices, and bustling foot traffic, this location is the embodiment of urban energy and accessibility. Its character building, high ceilings, dedicated entrance, autonomous heating and cooling, and practical basement storage make it a rare find in the neighbourhood. The thoughtfully designed split-level layout maximizes space and enhances operational flexibility. The division allows for easy separation between customer-facing areas and private staff or consultation zones. Retailers can showcase merchandise with creative displays, while professionals may utilize the levels for reception and workspace. If you're seeking a location that offers both visibility and versatility, this property deserves your careful consideration. The possibilities are as limitless as your imagination, and the neighbourhood provides the energy and support needed to help your business flourish. Arrange a viewing today and discover how this unit can become the home for your next venture.
Community Features: Public Transit, Subways
Cross Street: Church Street and Maitland Street
Key Facts
- Days on: 2 days
- Mls Status: Price Change
- Bathrooms Total Integer: 1
- Lot Type: Lot
- Lot Width: 17.00
- Garage Type: Boulevard
- Heat Type: Water Radiators
- Cooling: Partial
- Building Area Total: 1555 Square Feet
- Retail Area: 1136 Sq Ft
- Lot Size Area: 1513 SquareFeet
Location 453, Church, Church-Yonge Corridor, Toronto
Search by Neighbourhoods
























