168, Tempel, Rural Richmond Hill, Richmond Hill, Residential Freehold
- 3 beds |
- 3 baths |
- 1500-2000 SQFT

Description
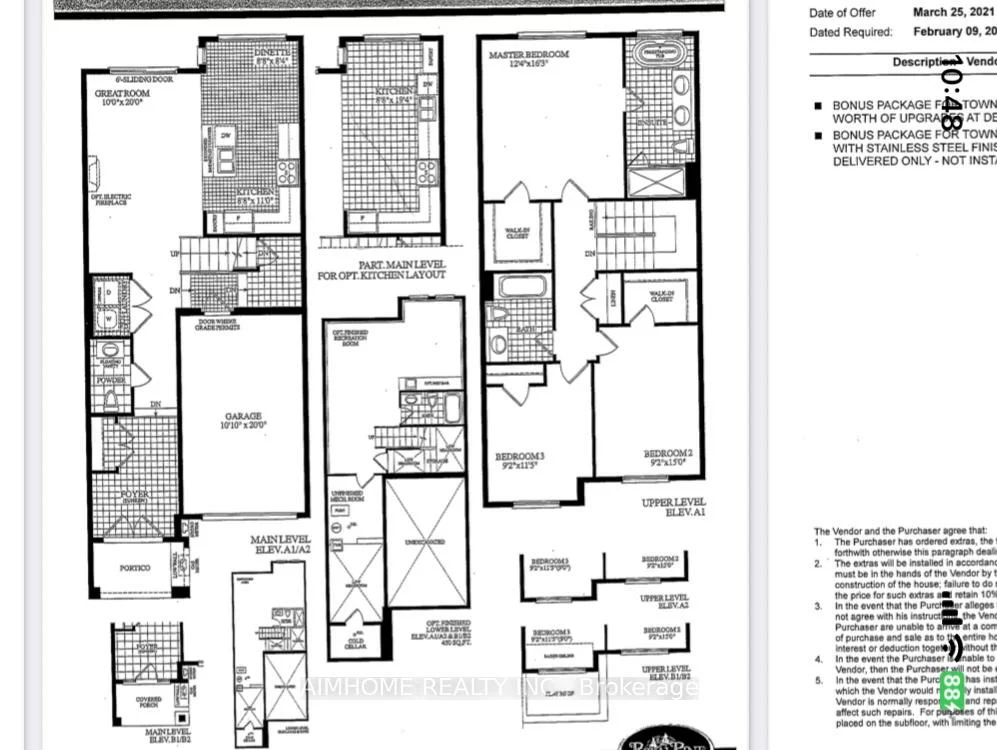
Residential Freehold Att/Row/Townhouse For Sale.
Welcome to the beautiful Oakridge Meadows community, a design inspired by nature and modern living, just minutes from Highways 404 and 407 and the Gormley GO train station. This brand new two-storey luxury freehold modern townhouse, built by Country Wide, faces the future community park. It features premium hardwood floors throughout, an open-plan kitchen with KitchenAid stainless steel appliances, a basement with a view window, and a private walkway connecting the garage and backyard. The owner spent less than $200,000 .00 dollars on renovations and upgrades and enjoys a Tarion warranty. Nearby are excellent schools, farmers markets, golf courses, and nature trails, a perfect blend of natural beauty and modern living.
Interior Features: Auto Garage Door Remote, Countertop Range
Cross Street: Stouffville RD & Leslie St
Direction Faces: East
Key Facts
- Days on: 1 days
- Mls Status: New
- Bedrooms Total: 3
- Bedrooms Above Grade: 3
- Den / Family Room: Yes
- Bathrooms Total Integer: 3
- Lot Width: 19.38
- Kitchens Total: 1
- Parking Total: 2
- Parking Spaces: 1
- Garage Type: Built-In
- Heat Source: Gas
- Heat Type: Forced Air
- Cooling: Central Air
- Living Area Range: 1500-2000 Square Feet
Location 168, Tempel, Rural Richmond Hill, Richmond Hill
Search by Neighbourhoods























