398, Highway 7, Doncrest, Richmond Hill, Residential Condo & Other
- 2 beds |
- 1 baths |
- 600-699 SQFT

Description
Residential Condo & Other Condo Apartment For Sale.
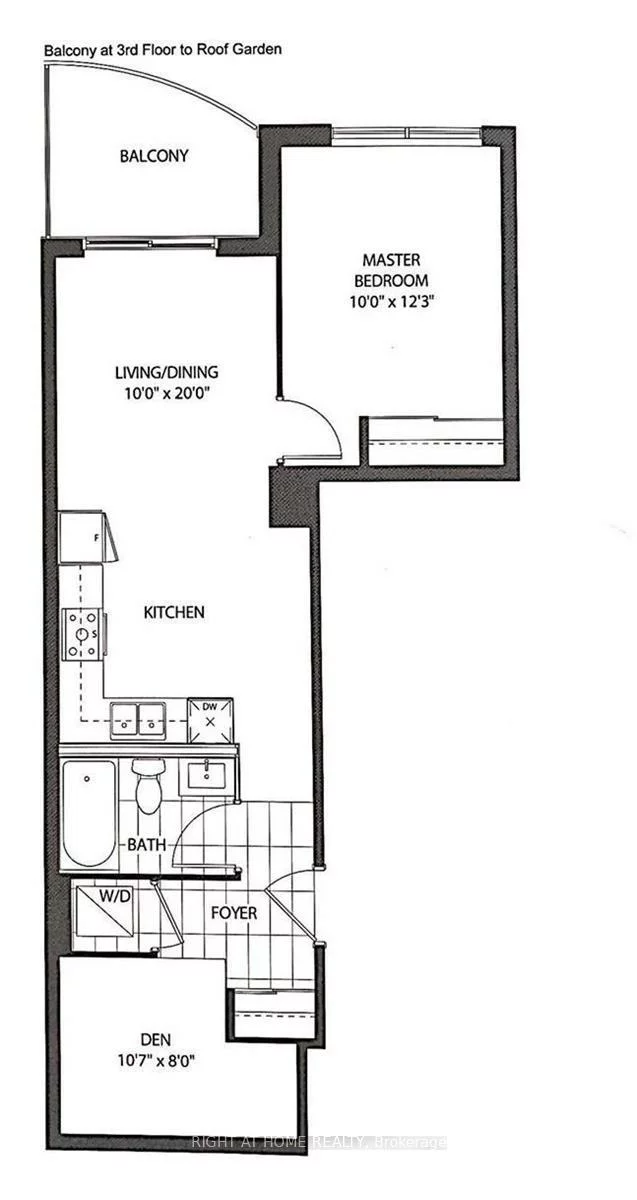
Luxury 1 Bedroom + Den Condo South Facing With Floor-to-Ceiling Windows. Large Den Can Be Used As 2nd Bedroom. 9' Ceiling Throughout. Bright Open Concept Layout With Spacious Living Area And Walkout To Large Balcony. Located In High Demand Area With Easy Access To Hwy 404 & 407. Steps To York Transit, Viva, And Minutes To GO Station. Walking Distance To Restaurants, Shops, Supermarkets, Parks, And More. Building Amenities Include 24 Hr Concierge, Gym, Library, Party Room, Meeting Room, And Visitor Parking.1 Parking & 1 Locker Included.
Property Features: Public Transit, Clear View
Laundry Features: Ensuite
Interior Features: Carpet Free
Cross Street: Hwy 7 E / Valleymede
Building Name: Valleymede Tower
Key Facts
- Days on: 2 days
- Mls Status: Sold Conditional
- Board Property Type: Condo
- Bedrooms Total: 2
- Bedrooms Below Grade: 1
- Bedrooms Above Grade: 1
- Bathrooms Total Integer: 1
- Locker: Owned
- Locker Level: B
- Locker Unit: 284
- Kitchens Total: 1
- Parking Total: 1
- Parking Spaces: 1
- Parking Features: Underground
- Garage Type: Underground
- Heat Source: Gas
- Heat Type: Forced Air
- Cooling: Central Air
- Living Area Range: 600-699 Square Feet
Location 398, Highway 7, Doncrest, Richmond Hill
Search by Neighbourhoods









