10A, Benson, Port Credit, Mississauga, Residential Freehold
- 5 beds |
- 5 baths |
- 3000-3500 SQFT

Description
Residential Freehold Detached For Sale.
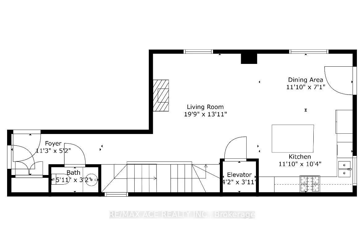
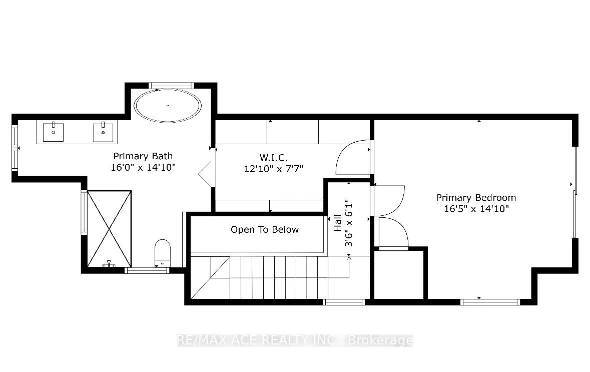
Experience refined living in this newly built family home just steps from Lake Ontario and vibrant Port Credit. Designed with convenience in mind, the residence features a custom-built elevator providing access from the basement to the third floor. Oversized windows and a skylight flood the home with natural light, highlighting the open-concept design. The chef-inspired kitchen is a true centerpiece, complete with a spacious island, premium Decor appliances, and seamless flow into a bright great room featuring custom built-in shelving and an elegant electric fireplace. The private fenced backyard offers the perfect setting for relaxing or entertaining. The primary suite is a retreat of its own with a walk-through closet, spa-like ensuite with heated floors, and a dream soaker tub. Each of the four bedrooms includes its own ensuite and generous closet space. A full-sized laundry room on the second floor adds convenience to everyday living. The fully finished basement provides flexibility with an additional bedroom or office, guest bathroom, bar, and a spacious recreation room with a separate entrance. Heated floors in the powder room and foyer, engineered hardwood throughout, and high-end European/Italian tiles elevate the homes sophisticated style. An EV charger is also included.
Interior Features: Carpet Free
Cross Street: Mississauga Rd/Lakeshore Rd
Direction Faces: West
Key Facts
- Days on: 0 days
- Mls Status: Price Change
- Bedrooms Total: 5
- Bedrooms Below Grade: 1
- Bedrooms Above Grade: 4
- Den / Family Room: Yes
- Bathrooms Total Integer: 5
- Lot Width: 28.00
- Kitchens Total: 1
- Parking Total: 3
- Parking Spaces: 2
- Parking Features: Private
- Garage Type: Attached
- Heat Source: Gas
- Heat Type: Forced Air
- Cooling: Central Air
- Living Area Range: 3000-3500 Square Feet
Location 10A, Benson, Port Credit, Mississauga
Search by Neighbourhoods

























