6351, Goreway, Northeast, Mississauga, Commercial
MLS® Number W12497638
For Sale $ 11,888,000
- 130680 SQFT

Description
Commercial Land For Sale.
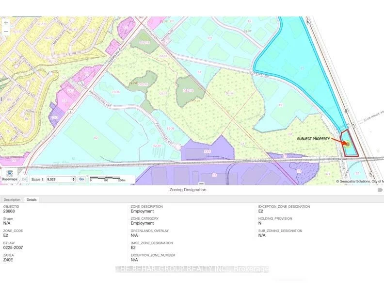
Prime Employment Land on 2.54 Acres fronting Highway 427 in Northeast Mississauga South of Derry Road E. Graded and Fenced Lot. E2 Employment Zone with many allowable uses such as Self-Storage, Parking, Office, Warehouse, Distribution, Waste Transfer Station, Motor Vehicle Services, Proximity to Highway 400's and Pearson International Airport.
Community Features: Major Highway, Public Transit
Cross Street: Goreway Drive & Dixie Road
Key Facts
- Days on: 1 days
- Mls Status: New
- Lot Type: Lot
- Lot Width: 432.88
- Garage Type: Outside/Surface
- Heat Type: None
- Cooling: No
- Building Area Total: 2 Acres
Location 6351, Goreway, Northeast, Mississauga
Search by Neighbourhoods












