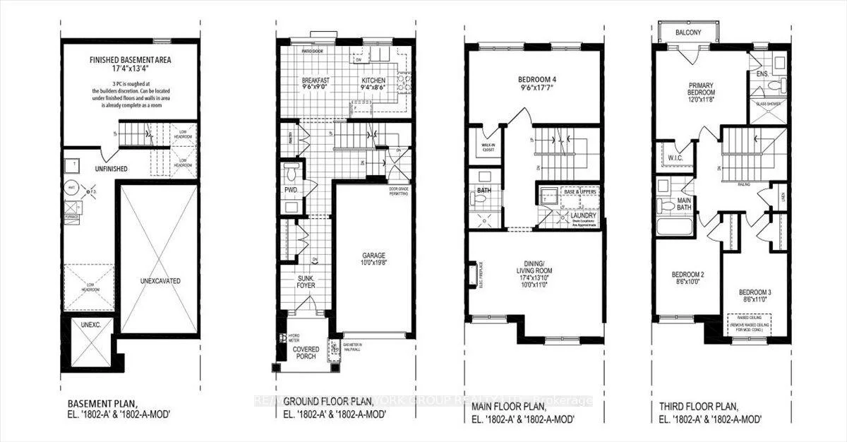
5, John Carter, Vinegar Hill, Markham, Residential Freehold
- 4 beds |
- 4 baths |
- 1500-2000 SQFT

Description
Residential Freehold Att/Row/Townhouse For Sale.
Vintage-Inspired 4-Bedroom Luxury Townhomes in Vinegar Hill Built by Garden Homes.Experience refined living in the heart of Vinegar Hill, one of Markham's most historic and picturesque communities. This limited collection of vintage-inspired 3-storey townhomes offers 4 spacious bedrooms, a finished basement, and elegant architecture that pays tribute to the areas rich heritage expertly built by Garden Homes, a Prestige Award-winning builder known for quality craftsmanship and timeless design. Perfectly positioned at Markham Road & Hyw 407, these homes are just steps from the Rouge River Valley, Milne Dam Conservation Park, and surrounded by trails, greenery, and the charm of historic Markham Village all with easy access to Highway 407, GO Transit, and local amenities.Now Selling Timeless Design. Trusted Builder. Unmatched Location.
Interior Features: None
Cross Street: HYW 48/Mill
Direction Faces: West
Key Facts
- Days on: 1 days
- Mls Status: New
- Bedrooms Total: 4
- Bedrooms Above Grade: 4
- Bathrooms Total Integer: 4
- Kitchens Total: 1
- Parking Total: 2
- Parking Spaces: 1
- Garage Type: Built-In
- Heat Source: Gas
- Heat Type: Forced Air
- Cooling: Central Air
- Living Area Range: 1500-2000 Square Feet
Location 5, John Carter, Vinegar Hill, Markham
Search by Neighbourhoods

























