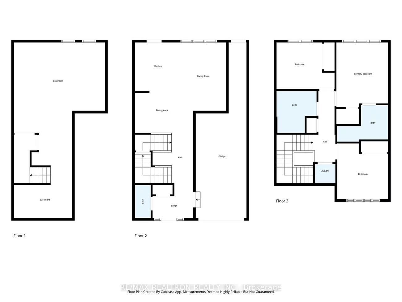
8, Emily, Northwest Brampton, Brampton, Residential Freehold
- 3 beds |
- 3 baths |
- 1100-1500 SQFT

Description
Residential Freehold Att/Row/Townhouse For Sale.
Welcome to 8 Emily Street, a beautifully renovated 3-bedroom, 3-bathroom townhouse located in one of Northwest Brampton's most sought-after family communities. This home has been meticulously maintained and showcases modern finishes, an open-concept layout, and bright, inviting spaces throughout. The updated kitchen features sleek cabinetry, stainless steel appliances, and plenty of counterspace - perfect for family meals or entertaining. The spacious living and dining areas flow seamlessly to a private backyard, ideal for relaxing or hosting guests. Upstairs, you'll find three generous bedrooms, including a primary suite with an ensuite bath and walk-in closet. Located close to schools, parks, shopping, restaurants, and transit, this home offers the perfect blend of comfort, style, and convenience. Just move in and enjoy everything this vibrant community has to offer!
Interior Features: Carpet Free
Cross Street: Wanless Dr/Edenbrook Hill Dr
Direction Faces: West
Key Facts
- Days on: 1 days
- Mls Status: New
- Bedrooms Total: 3
- Bedrooms Above Grade: 3
- Bathrooms Total Integer: 3
- Lot Width: 23.03
- Kitchens Total: 1
- Parking Total: 2
- Parking Spaces: 1
- Parking Features: Private
- Garage Type: Built-In
- Heat Source: Gas
- Heat Type: Forced Air
- Cooling: Central Air
- Living Area Range: 1100-1500 Square Feet
Location 8, Emily, Northwest Brampton, Brampton
Search by Neighbourhoods

























